Onderdelen

Bouwlink zal uw wensen v.w.b. de (ver) bouw zo goed mogelijk vertalen naar een plan van aanpak. Hiervoor zijn een aantal noodzakelijke documenten nodig.  Hieronder een opsomming van de stukken die wij voor u kunnen verzorgen. Ieder project is uniek en Bouwlink zal dan ook maatwerk leveren, vooraf met u vastgelegd in een transparant contractstuk. We zullen ervoor zorgen dat er geen verassingen optreden tijdens het proces. Gedurende het hele traject zal Bouwlink u adviseren en bijstaan. U heeft natuurlijk als opdrachtgever altijd het laatste woord.

 

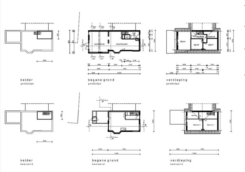
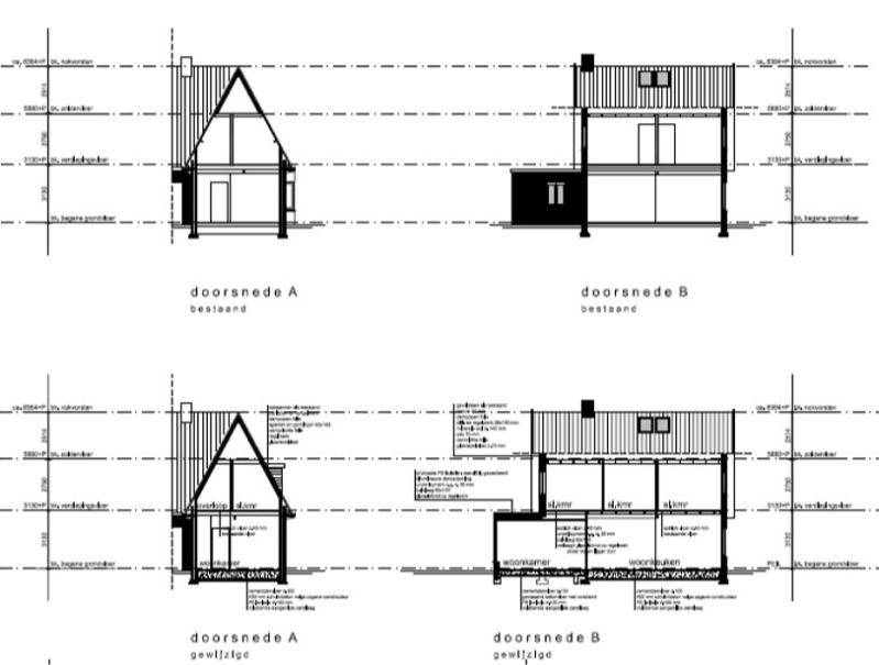
BOUWKUNDIG TEKENWERK

Tekenwerk in de verschillende stadia van het project. Van schetsontwerp tot gedetailleerde werktekeningen, uitgaande van de bestaande situatie.

 

AANVRAAG VERGUNNING

Bouwlink verzorgt de gehele bouwaanvraag (tekeningen en berekeningen)bij de gemeente en communiceert met de desbetreffende ambtenaar.

 

BESTEKSTUKKEN

Technische omschrijving of stabu bestek afhankelijk van projectgrootte.

 

AANBESTEDING

Bouwlink begeleid het gehele inkooptraject en zorgt voor een selectie van onderaannemers en leveranciers. Hierbij worden de partijen aan elkaar gespiegeld en beoordeeld op prijs, tijd en kwaliteit.

 

BOUWBEGELEIDING

Bouwlink kan de realisatie begeleiden op verschillende manieren. Van een uren contract tot een risico dragend projectmanagement.

 

FINANCIËN

Bouwlink kan ook zorg dragen voor de gehele financiële afwikkeling met instanties, aannemers en leveranciers. 

 

OPLEVERING

Ook voor de oplevering kan Bouwlink worden ingezet zodat de het uiteindelijke gerealiseerde project voldoet aan de vooraf gestelde eisen en kwaliteit.

 

Algemene voorwaarden 
Voor al onze opdrachten is ‘De nieuwe Regeling 2011: Rechtsverhouding opdrachtgever-architect, ingenieur en adviseur DNR 2011’ van toepassing. Eerste herziening, juli 2013 van toepassing. Via deze link kunt u de DNR 2011 downloaden.